Località: Milano Marittima - Rif.Cod.: villino

in vendita zona: Milano Marittima

Caratteristiche

Codice di Riferimento:
villino
Località:
Milano Marittima
Tipo di Contratto:
Vendita
Tipologia Immobile:
Casa
Condizioni:
Nuovo
Superficie:
110
Camere:
3
Bagni:
2
Piano:
Piano Terra
Posto auto:
Si
Garage:
No
Classe Energetica:
Classe Energetica a+

Prezzo di vendita:
€ 1300000

Descrizione

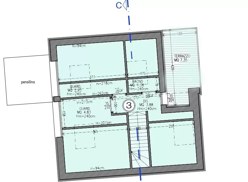
 In zona tranquilla e residenziale, proponiamo in vendita villetta indipendente di nuova  costruzione disposta su tre livelli, con giardino. Internamente composta da:

Piano Terra:  zona giorno con   ampio soggiorno e  cucina a vista di oltre 30 mq, una camera matrimoniale e un bagno  con antibagno.

Piano Primo: zona notte composta da due camere, un bagno e un terrazzo. 

Piano Interrato : collegato internamente da scala.

Completano la proprietà un posto auto e il giardino privato.

Servizi

L'immobile dispone di: Angolo Cottura, Aria condizionata, Finiture eleganti, Giardino, Ingresso indipendente , Posto auto, Riscaldamento, Terrazzo , Vicino al mare

Richiedi l'immobile Rif.Cod.: villino

Dichiaro di aver preso atto dell'informativa sulla privacy relativa al trattamento dei miei dati personali.
L'agenzia La Fiducia non utilizzerà i dati in suo possesso per svolgere attività di marketing se non con il consenso espresso da parte del richiedente. L'agenzia si impegna a non cedere i dati in suo possesso a terzi.